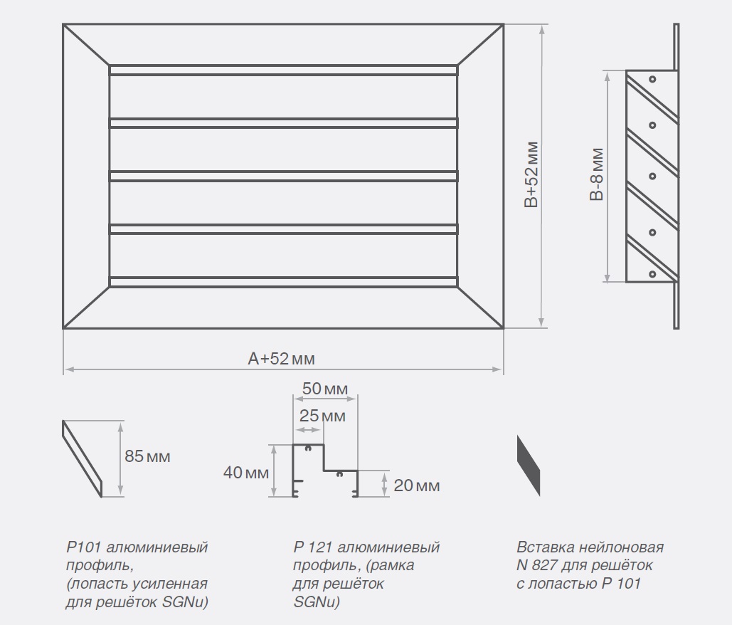
Решетка SGNu используется в системе вентиляции и кондиционирования воздуха. Предназначены для монтажа строительные проёмы в помещениях, а также систему вентфасадов. Решётки изготовлены из алюминиевого профиля в виде рамки и жёстко закреплённых лопастей под углом 65 град. Рамка решётки выполнена из усиленного профиля. Лопасть Р 101 набираются на рамку из профиля Р121 с помощью разделителя N 827. Решётки окрашены в белый цвет. Возможна окраска в любые цвета каталога RAL. Также возможно изготовления решёток нестандартного размера.
