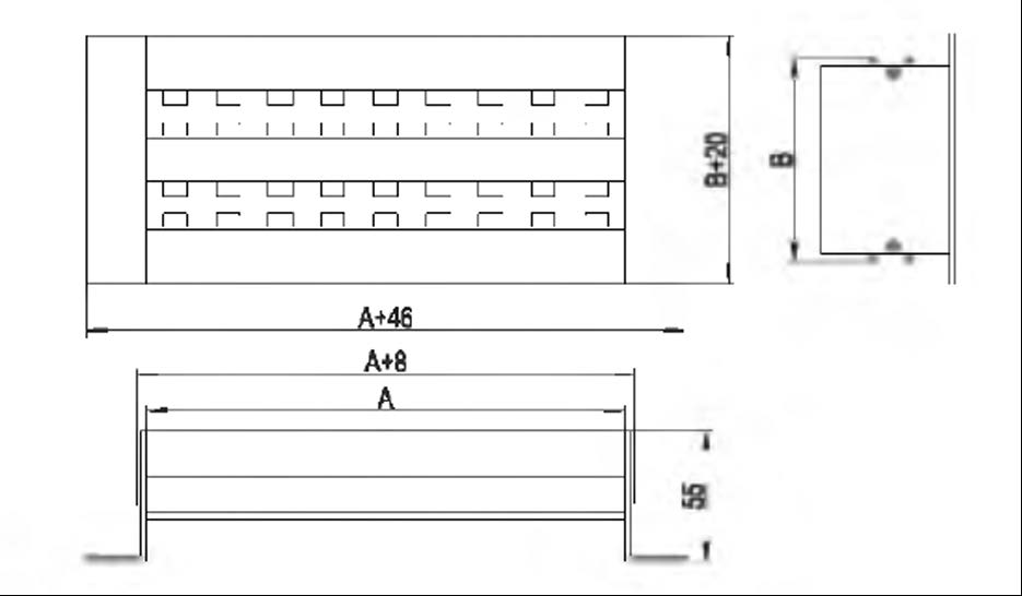
Щелевые линейные диффузоры SGID, SGID 1, SGID 2 используются в приточно-вытяжной вентиляции и системах кондиционирования воздуха и предназначены для монтажа в воздуховоды или строительные проемы помещений различных типов и назначений. Для подачи воздуха в помещения используются диффузоры SGID, оснащенные поворотными жалюзи для регулирования направления воздуха. Для удаления воздуха из помещения целесообразней использовать облегченные диффузоры SGID 1, SGID 2 Решетки изготовлены из алюминиевого профиля с числом щелей от 1 до 6. Роль регулирования расхода воздуха выполняют подвижные перфорированные пластины. Каждый диффузор серии SGID может выступать как самостоятельное законченное изделие, так и как часть секционной решетки. Диффузор SGID 1 изготовляется без поворотных жалюзи (применяется преимущественно для удаления воздуха). Диффузор SGID 2 изготовляется без поворотных жалюзи и подвижных пластин (применяется в системах не нуждающихся в регулировании). В качестве защитно-декоративного покрытия порошковая полиэфирная краска. Стандартный цвет покрытия белый RAL 9016 при заказе не указывается (возможно окрашивание в любой другой цвет согласно каталогу цветов RAL). Поворотные жалюзи и перфорация окрашивается в черный цвет. Для диффузоров серии SGID предусмотрена возможность оснащения адаптером для присоединения к воздуховоду. Адаптеры могут быть как с боковым, так и с осевым присоединением к воздуховоду круглого либо прямоугольного сечения. Ассортимент диффузоров данной серии включает в себя изделия стандартных типоразмеров, а также возможно изготовление любых размеров, с шагом 1 мм.




Дано:
Q = 400 м3 / ч; I0,2 = 10 м; направление струи – схема II
Решение:
Из диаграммы 1 видно, что заданным требованиям удовлетворяют несколько типов диффузоров (SGID 3000 / 1, SGID 2000 / 2, SGID 1700 / 3). По конструктивным соображениям выбираем линейный диффузор SGID 1700 / 3. Из таблицы 1 находим:
F (гор.) c. c = 0,036 м2;
m = 5,6 кг.
Из диаграммы 2 определяем:
AP = 8,5 Па;
Ус. с. = 3,1 м / с.
I 0,2; 0,5; 0,75 – дальнобойность струи (Vl = 0,2; 0,5; 0,75 м / с), м
L – длина диффузора, м
Q – расход воздуха, м3 / ч
AP – потеря давления, Па
Vc. c. – скорость в свободном сечении м / с
Vl – скорость на оси струи на расстоянии I, м / с
Fc. c. – площадь свободного сечения, м2
| Число щилей | Тип | Параметр | Условный размер по горизонтали, А (мм) | ||||||||||||||||||
|---|---|---|---|---|---|---|---|---|---|---|---|---|---|---|---|---|---|---|---|---|---|
| 250 | 300 | 400 | 500 | 600 | 700 | 800 | 900 | 1000 | 1100 | 1200 | 1300 | 1400 | 1500 | 1600 | 1700 | 1800 | 1900 | 2000 | |||
| 1. В=41,(мм) | SGID | F (гор.) с. с., м2 | 0,002 | 0,002 | 0,003 | 0,004 | 0,004 | 0,005 | 0,006 | 0,006 | 0,007 | 0,008 | 0,008 | 0,009 | 0,010 | 0,011 | 0,011 | 0,012 | 0,013 | 0,013 | 0,014 |
| F (вер.) с. с., м2 | 0,003 | 0,003 | 0,004 | 0,005 | 0,006 | 0,007 | 0,008 | 0,009 | 0,010 | 0,011 | 0,012 | 0,013 | 0,014 | 0,015 | 0,016 | 0,017 | 0,018 | 0,019 | 0,020 | ||
| m, кг | 0,4 | 0,4 | 0,6 | 0,7 | 0,8 | 1,0 | 1,1 | 1,3 | 1,4 | 1,5 | 1,7 | 1,8 | 2,0 | 2,1 | 2,2 | 2,4 | 2,5 | 2,7 | 2,8 | ||
| SGID1 | F с. с., м2 | 0,003 | 0,003 | 0,004 | 0,005 | 0,006 | 0,007 | 0,008 | 0,009 | 0,010 | 0,011 | 0,012 | 0,013 | 0,014 | 0,015 | 0,016 | 0,017 | 0,018 | 0,019 | 0,020 | |
| m, кг | 0,3 | 0,4 | 0,5 | 0,6 | 0,7 | 0,8 | 1,0 | 1,1 | 1,2 | 1,3 | 1,4 | 1,6 | 1,7 | 1,8 | 1,9 | 2,0 | 2,2 | 2,3 | 2,4 | ||
| SGID2 | F с. с., м2 | 0,005 | 0,006 | 0,008 | 0,010 | 0,012 | 0,014 | 0,016 | 0,018 | 0,020 | 0,022 | 0,024 | 0,026 | 0,028 | 0,030 | 0,032 | 0,034 | 0,036 | 0,038 | 0,040 | |
| m, кг | 0,2 | 0,3 | 0,4 | 0,5 | 0,5 | 0,6 | 0,7 | 0,8 | 0,9 | 1,0 | 1,1 | 1,2 | 1,3 | 1,4 | 1,4 | 1,5 | 1,6 | 1,7 | 1,8 | ||
| 2. В=80,(мм) | SGID | F (гор.) с. с., м2 | 0,004 | 0,004 | 0,006 | 0,007 | 0,008 | 0,010 | 0,011 | 0,013 | 0,014 | 0,015 | 0,017 | 0,018 | 0,020 | 0,021 | 0,022 | 0,024 | 0,025 | 0,027 | 0,028 |
| F (вер.) с. с., м2 | 0,005 | 0,006 | 0,008 | 0,010 | 0,012 | 0,014 | 0,016 | 0,018 | 0,020 | 0,022 | 0,024 | 0,026 | 0,028 | 0,030 | 0,032 | 0,034 | 0,036 | 0,038 | 0,040 | ||
| m, кг | 0,6 | 0,7 | 0,9 | 1,2 | 1,4 | 1,6 | 1,9 | 2,1 | 2,3 | 2,6 | 2,8 | 3,0 | 3,3 | 3,5 | 3,7 | 4,0 | 4,2 | 4,4 | 4,7 | ||
| SGID1 | F с. с., м2 | 0,005 | 0,006 | 0,008 | 0,010 | 0,012 | 0,014 | 0,016 | 0,018 | 0,020 | 0,022 | 0,024 | 0,026 | 0,028 | 0,030 | 0,032 | 0,034 | 0,036 | 0,038 | 0,040 | |
| m, кг | 0,5 | 0,6 | 0,7 | 0,9 | 1,1 | 1,3 | 1,5 | 1,7 | 1,9 | 2,1 | 2,2 | 2,4 | 2,6 | 2,8 | 3,0 | 3,2 | 3,4 | 3,6 | 3,7 | ||
| SGID2 | F с. с., м2 | 0,010 | 0,012 | 0,016 | 0,020 | 0,024 | 0,028 | 0,032 | 0,036 | 0,040 | 0,044 | 0,048 | 0,052 | 0,056 | 0,060 | 0,064 | 0,068 | 0,072 | 0,076 | 0,080 | |
| m, кг | 0,3 | 0,4 | 0,5 | 0,7 | 0,8 | 0,9 | 1,1 | 1,2 | 1,3 | 1,5 | 1,6 | 1,7 | 1,9 | 2,0 | 2,1 | 2,3 | 2,4 | 2,4 | 2,7 | ||
| 3. В=119,(мм) | SGID | F (гор.) с. с., м2 | 0,005 | 0,006 | 0,008 | 0,011 | 0,013 | 0,015 | 0,017 | 0,019 | 0,021 | 0,023 | 0,025 | 0,027 | 0,029 | 0,032 | 0,034 | 0,036 | 0,038 | 0,040 | 0,042 |
| F (вер.) с. с., м2 | 0,008 | 0,009 | 0,012 | 0,015 | 0,018 | 0,021 | 0,024 | 0,027 | 0,030 | 0,033 | 0,036 | 0,039 | 0,042 | 0,045 | 0,048 | 0,051 | 0,054 | 0,057 | 0,060 | ||
| m, кг | 0,9 | 1,0 | 1,3 | 1,6 | 2,0 | 2,3 | 2,6 | 3,0 | 3,3 | 3,6 | 3,9 | 4,3 | 4,6 | 4,9 | 5,3 | 5,6 | 5,9 | 6,3 | 6,6 | ||
| SGID1 | F с. с., м2 | 0,008 | 0,009 | 0,012 | 0,015 | 0,018 | 0,021 | 0,024 | 0,027 | 0,030 | 0,033 | 0,036 | 0,039 | 0,042 | 0,045 | 0,048 | 0,051 | 0,054 | 0,057 | 0,060 | |
| m, кг | 0,7 | 0,8 | 1,0 | 1,3 | 1,6 | 1,8 | 2,1 | 2,3 | 2,6 | 2,8 | 3,1 | 3,4 | 3,6 | 3,9 | 4,1 | 4,4 | 4,7 | 4,9 | 5,2 | ||
| SGID2 | F с. с., м2 | 0,015 | 0,018 | 0,024 | 0,030 | 0,036 | 0,042 | 0,048 | 0,054 | 0,060 | 0,066 | 0,072 | 0,078 | 0,084 | 0,090 | 0,096 | 0,102 | 0,108 | 0,114 | 0,120 | |
| m, кг | 0,4 | 0,5 | 0,7 | 0,9 | 1,1 | 1,2 | 1,4 | 1,6 | 1,8 | 2,0 | 2,1 | 2,3 | 2,5 | 2,7 | 2,8 | 3,0 | 3,2 | 3,4 | 3,6 | ||
| 4. В=158,(мм) | SGID | F (гор.) с. с., м2 | 0,007 | 0,008 | 0,011 | 0,014 | 0,017 | 0,020 | 0,022 | 0,025 | 0,028 | 0,031 | 0,034 | 0,036 | 0,039 | 0,042 | 0,045 | 0,048 | 0,050 | 0,053 | 0,056 |
| F (вер.) с. с., м2 | 0,010 | 0,012 | 0,016 | 0,020 | 0,024 | 0,028 | 0,032 | 0,036 | 0,040 | 0,044 | 0,048 | 0,052 | 0,056 | 0,060 | 0,064 | 0,068 | 0,072 | 0,076 | 0,080 | ||
| m, кг | 1,2 | 1,3 | 1,7 | 2,1 | 2,5 | 3,0 | 3,4 | 3,8 | 4,2 | 4,7 | 5,1 | 5,5 | 5,5 | 6,4 | 6,8 | 7,2 | 7,6 | 8,1 | 8,5 | ||
| SGID1 | F с. с., м2 | 0,010 | 0,012 | 0,016 | 0,020 | 0,024 | 0,028 | 0,032 | 0,036 | 0,040 | 0,044 | 0,048 | 0,052 | 0,056 | 0,060 | 0,064 | 0,068 | 0,072 | 0,076 | 0,080 | |
| m, кг | 0,9 | 1,0 | 1,3 | 1,7 | 2,0 | 2,3 | 2,7 | 3,0 | 3,3 | 3,7 | 4,0 | 4,3 | 4,6 | 5,0 | 5,3 | 5,6 | 6,0 | 6,3 | 6,6 | ||
| SGID2 | F с. с., м2 | 0,020 | 0,024 | 0,032 | 0,040 | 0,048 | 0,056 | 0,064 | 0,072 | 0,080 | 0,088 | 0,096 | 0,104 | 0,112 | 0,120 | 0,128 | 0,136 | 0,144 | 0,152 | 0,160 | |
| m, кг | 0,5 | 0,7 | 0,9 | 1,1 | 1,3 | 1,6 | 1,8 | 2,0 | 2,2 | 2,5 | 2,7 | 2,9 | 3,1 | 3,4 | 3,6 | 3,8 | 4,0 | 4,3 | 4,5 | ||
| 5. В=197,(мм) | SGID | F (гор.) с. с., м2 | 0,009 | 0,011 | 0,014 | 0,018 | 0,021 | 0,025 | 0,028 | 0,032 | 0,035 | 0,039 | 0,042 | 0,046 | 0,049 | 0,053 | 0,056 | 0,060 | 0,063 | 0,067 | 0,070 |
| F (вер.) с. с., м2 | 0,013 | 0,015 | 0,020 | 0,025 | 0,030 | 0,035 | 0,040 | 0,045 | 0,050 | 0,055 | 0,060 | 0,065 | 0,070 | 0,075 | 0,080 | 0,085 | 0,090 | 0,095 | 0,100 | ||
| m, кг | 1,4 | 1,6 | 2,1 | 2,6 | 3,1 | 3,6 | 4,2 | 4,7 | 5,2 | 5,7 | 6,2 | 6,7 | 7,3 | 7,8 | 8,3 | 8,8 | 9,3 | 9,9 | 10,4 | ||
| SGID1 | F с. с., м2 | 0,013 | 0,015 | 0,020 | 0,025 | 0,030 | 0,035 | 0,040 | 0,045 | 0,050 | 0,055 | 0,060 | 0,065 | 0,070 | 0,075 | 0,080 | 0,085 | 0,090 | 0,095 | 0,100 | |
| m, кг | 1,1 | 1,2 | 1,6 | 2,0 | 2,4 | 2,8 | 3,2 | 3,6 | 4,0 | 4,4 | 4,8 | 5,2 | 5,6 | 6,0 | 6,4 | 6,9 | 7,3 | 7,7 | 8,1 | ||
| SGID2 | F с. с., м2 | 0,025 | 0,030 | 0,040 | 0,050 | 0,060 | 0,070 | 0,080 | 0,090 | 0,100 | 0,110 | 0,120 | 0,130 | 0,140 | 0,150 | 0,160 | 0,170 | 0,180 | 0,190 | 0,200 | |
| m, кг | 0,6 | 0,8 | 1,1 | 1,3 | 1,6 | 1,9 | 2,1 | 2,4 | 2,7 | 2,9 | 3,2 | 3,5 | 3,8 | 4,0 | 4,3 | 4,6 | 4,8 | 5,1 | 5,4 | ||
| 6. В=236,(мм) | SGID | F (гор.) с. с., м2 | 0,011 | 0,013 | 0,017 | 0,021 | 0,025 | 0,029 | 0,034 | 0,038 | 0,042 | 0,046 | 0,050 | 0,055 | 0,059 | 0,063 | 0,067 | 0,071 | 0,076 | 0,080 | 0,084 |
| F (вер.) с. с., м2 | 0,015 | 0,018 | 0,024 | 0,030 | 0,036 | 0,042 | 0,048 | 0,054 | 0,060 | 0,066 | 0,072 | 0,078 | 0,084 | 0,090 | 0,096 | 0,102 | 0,108 | 0,114 | 0,120 | ||
| m, кг | 1,7 | 1,8 | 2,5 | 3,1 | 3,7 | 4,3 | 4,9 | 5,5 | 6,2 | 6,8 | 7,4 | 8,0 | 8,6 | 9,2 | 9,9 | 10,5 | 11,1 | 11,7 | 12,3 | ||
| SGID1 | F с. с., м2 | 0,015 | 0,018 | 0,024 | 0,030 | 0,036 | 0,042 | 0,048 | 0,054 | 0,060 | 0,066 | 0,072 | 0,078 | 0,084 | 0,090 | 0,096 | 0,102 | 0,108 | 0,114 | 0,120 | |
| m, кг | 1,3 | 1,4 | 1,9 | 2,4 | 2,9 | 3,3 | 3,8 | 4,3 | 4,8 | 5,2 | 5,7 | 6,2 | 6,7 | 7,1 | 7,6 | 8,1 | 8,6 | 9,0 | 9,5 | ||
| SGID2 | F с. с., м2 | 0,030 | 0,036 | 0,048 | 0,060 | 0,072 | 0,084 | 0,096 | 0,108 | 0,120 | 0,132 | 0,144 | 0,156 | 0,168 | 0,180 | 0,192 | 0,204 | 0,216 | 0,228 | 0,240 | |
| m, кг | 0,7 | 0,9 | 1,3 | 1,6 | 1,9 | 2,2 | 2,5 | 2,8 | 3,1 | 3,5 | 3,8 | 4,1 | 4,4 | 4,7 | 5,0 | 5,3 | 5,7 | 6,0 | 6,3 | ||